Case Study: 3800W FSW Liquid Cold Plate for EV Charging Station
Application
Electric Vehicle (EV) Charging Station
Project Background & Challenge
The client’s existing system relied on an extruded aluminum air-cooled heat sink. To significantly boost the charging efficiency and power density of their next-generation product, a transition to a liquid cooling architecture was required. Ecotherm was tasked with co-developing a custom Friction Stir Welded (FSW) aluminum liquid cold plate, providing end-to-end support from initial design to prototype validation and mass production delivery.
Initial Technical Specifications
Based on preliminary engineering discussions, the core parameters were defined as follows:
Material: Aluminum Alloy
Dimensions: 650mm x 439mm x 12mm
Inlet Coolant Temperature: 25°C
Flow Rate: 4 L/min
Heat Load (Power Dissipation): 3800W / 1900W
Coolant Type: 50/50 Ethylene Glycol and Water (EGW 50%)
Thermal Modeling & CFD Simulation
Following the initial CAD modeling, our team conducted comprehensive Computational Fluid Dynamics (CFD) simulations. We collaborated closely with the client to optimize the internal flow channels, balancing temperature distribution, fluid velocity, and pressure drop limits. Once the thermal performance was validated and officially approved, we generated the following thermal contour maps:
To significantly boost the charging efficiency, a transition to a custom liquid cooling architecture was required. Ecotherm was tasked with co-developing a custom Friction Stir Welded (FSW) liquid cold plate
Contact Ecothermgroup:support@ecothermgroup.com
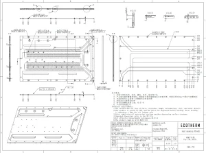
Structural Design & DFM
To ensure seamless integration into the final EV charging unit, we refined the cold plate’s structural design, focusing on precise mounting and assembly details. Below are the finalized 3D CAD models and 2D engineering drawings approved by the client for manufacturing:
Prototyping & Performance Testing
Mass Production
Delivery
Ready to Optimize Your High-Power Thermal Design?
Whether you need a custom liquid cold plate for EV charging, AI servers, or power electronics, our engineering team is ready to evaluate your thermal challenges.














